Emplacement
Ce studio neuf en métropole Lilloise est située dans une résidence services dédiée à l’hébergement étudiant.
La métropole compte 136 000 étudiants issus de 40 établissements d’enseignement supérieur, dont 4 universités majeures et plus de 11 000 étudiants internationaux. Lille se classe ainsi comme le 2e pôle universitaire de France (hors Paris) avec un vivier de talents unique et une demande locative étudiante constante et dynamique.
- Pôles universiataires à proximité de la residence
- Fac de médecine de Loos (12 000 etudiants) à 2.9 km soit 10 min en voiture, 20 min en vélo ou 40 min à pieds
- Fac de droit (9 000 etudiants) à 1.9 km, Porte de Douai
- Fac de sport de Ronchin (1 100 étudiants) à 1.7 km
Le bus 7 est à 200 m avec un accès direct au métro et au centre de Lille.
Une station V’Lille est à proximité avec 12 km de pistes cyclables.
Un arrêt du futur tramway Lille-Lesquin est prévu à 700m, avec une mise en service prévue pour 2035.
Prestations
Les espaces communs s’étendent sur 150 m² avec :
– un hall d’accueil chaleureux
– une salle de coworking
– une cafétaria avec terrasse
– une laverie
– un jardin paysager au cœur d’ilot
Des services très pratiques sont en place : manager sur le site, animations régulières, réception de colis…
La résidence bénéficie des dernières réglementations environnementales avec la norme RE2020.
Studio neuf en métropole Lilloise
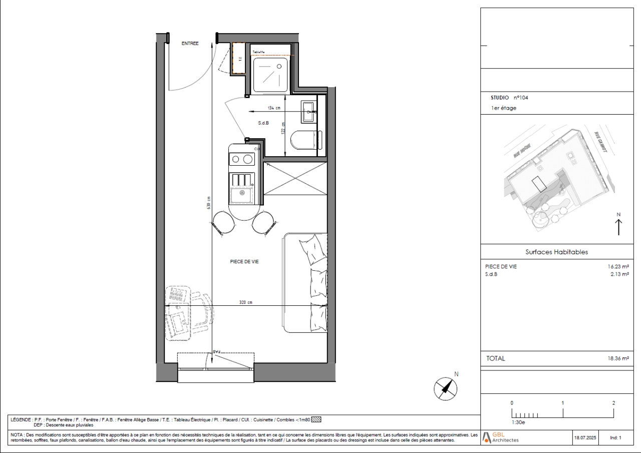
Nous vous proposons ce studio de 18,36 m² entièrement équipé et meublé, avec un coin nuit confortable, un espace bureau pour étudier, une kitchenette fonctionnelle et moderne, une salle d’eau privative et des rangements optimisés pour faciliter le quotidien.
Le logement bénéficie d’une exposition Sud et de la vue vers les jardins paysagers.
Frais de notaire réduits – Dans une copropriété – Aucune procédure en cours.
Pourquoi investir en résidence gérée ?
Le bien est exploité en meublé avec bail commercial ferme de 10 ans, ce qui vous permet de bénéficier du régime LMNP :
- Revenus locatifs peu ou pas imposés grâce à l’amortissement
- Rendements attractifs et réguliers : 4 %
- Aucun souci de gestion locative
- Très faibles charges de copropriété
L’exploitation sera confiée à NEORESID acteur reconnu dans la gestion de résidences étudiantes depuis 20 ans avec près de 17 résidences en exploitation en France et plus de 1500 logements.
______________
CARACTÉRISTIQUES TECHNIQUES
Localisation :
Nature du logement : Appartement
Typologie : T1
Date de livraison prévisionnelle : 3T2027
Surface habitable : 18,36 m²
Étage : 1
Nombre de chambres :1
Nombre de salles de bains :
Nombre de salles d’eau : 1
Nombre de WC : 1
Surface balcon :
Énergie : Chauffage : chauffage électrique
Charges mensuelles :












